E1 8JN
Either clear the filters to see all options or get in touch to discuss your requirements.
Located in the heart of London's vibrant East End, 13-15 Dock Street presents an exceptional opportunity for businesses seeking a dynamic and fully serviced office environment. This modern building is strategically positioned to provide easy access to key areas of the city, making it an ideal choice for companies that prioritize both connectivity and convenience.
View more
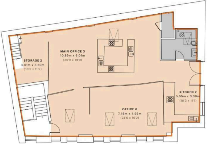
The office space at 13-15 Dock Street is designed with full-time tenants in mind, offering a range of dedicated office solutions that cater to diverse business needs. Each office is equipped with high-quality furnishings, advanced technology, and ample natural light, creating an inspiring atmosphere that fosters productivity and collaboration. The layout is versatile, accommodating teams of various sizes, from small startups to larger enterprises, ensuring that every business can find a space that suits its unique requirements.
One of the standout features of this building is its commitment to a professional working environment. Unlike typical coworking spaces, 13-15 Dock Street emphasizes full-time office rentals, allowing businesses to establish a permanent presence in a prestigious location. This stability is crucial for companies looking to build their brand and cultivate relationships with clients and partners. Tenants can enjoy the benefits of a dedicated office without the distractions often found in shared coworking setups.
The facilities at 13-15 Dock Street extend beyond just office space. Tenants have access to a range of amenities designed to enhance the work experience. High-speed internet, meeting rooms, and communal areas provide everything needed for seamless day-to-day operations. Additionally, the building's professional support staff is available to assist with administrative tasks, allowing companies to focus on their core business activities.
Another significant advantage of choosing 13-15 Dock Street is its prime location. Situated near the historic St. Katharine Docks and the bustling financial district, the area is rich in culture and business opportunities. With excellent transport links, including proximity to major underground and rail stations, employees can enjoy easy commutes, while clients can easily reach the office for meetings and collaborations.
In summary, 13-15 Dock Street stands out as a premier choice for businesses seeking dedicated office space in a thriving part of London. The building’s modern facilities, emphasis on full-time office solutions, and strategic location combine to create an environment that supports growth and success. Whether you are a small business looking to make your mark or a larger enterprise seeking a prestigious address, this property offers the ideal foundation for your professional journey.
The most popular nearby offices for customers who like 13 15 Dock Street are Portsoken House, Aldgate Tower, and 30 Dukes Place
View less
Response within 1 hour
Workspace Consultant
| 9 mins walk
| 792 yards
| 10 mins walk
| 880 yards
| 10 mins walk
| 880 yards
Transport Links Summary for 13-15 Dock Street, E1 8JN
View more
Tube:
The location at 13-15 Dock Street benefits from excellent access to London’s Underground network. The nearest tube station is Shadwell, which is approximately a 10-minute walk away. Shadwell station serves both the London Overground and the Docklands Light Railway (DLR), providing convenient connections to various parts of the city. The DLR allows easy access to Canary Wharf, while the Overground connects to major destinations like Whitechapel and Clapham Junction. Additionally, nearby stations such as Tower Hill and Aldgate East are reachable within a short distance, offering further connections to the Circle and District lines. This accessibility makes commuting to central London and beyond straightforward and efficient for residents and visitors alike.
Train:
In terms of rail services, 13-15 Dock Street is well positioned near several mainline train stations. The closest is Limehouse Station, situated just over a mile away, which provides services to Fenchurch Street, making it convenient for those traveling to the City of London. Additionally, the nearby Whitechapel Station offers connections to the Elizabeth Line, which significantly enhances travel options to destinations in East and West London, including Heathrow Airport. These rail links facilitate easy access for both daily commuters and those traveling for leisure, connecting them to a wider network of regional and national train services.
Bus:
The bus network around Dock Street is robust, with multiple routes serving the area. Several bus stops are located within a short walking distance, providing access to routes that connect to key locations across London. Buses such as the 25, 100, and D3 offer direct links to areas including Liverpool Street, Tower Bridge, and Stratford. The extensive bus network is particularly beneficial for short-distance travel and offers a reliable alternative to the tube, especially during peak hours or when other forms of transport are less convenient.
Bicycle:
For cyclists, the area surrounding 13-15 Dock Street is increasingly bike-friendly, with several cycle lanes and routes integrated into the urban landscape. There are bike-sharing schemes available, such as Santander Cycles, which allow for easy and flexible bike rentals. The proximity to the Thames Path provides a scenic route for cycling along the river, enabling a pleasant commute or leisure ride. Moreover, secure bike storage options are available nearby, making it a viable option for those who prefer cycling as their primary mode of transport. The growing emphasis on cycling infrastructure in London ensures that this mode of transport will continue to be a popular choice for residents and visitors in the Dock Street area.
View less
Last updated